
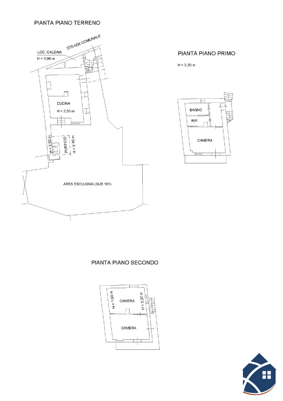
In borgata panoramica a 1200 metri, esposta a sud e molto soleggiata, raggiungibile tutto l'anno, la Chisone Immobiliare propone in vendita casa indipendente su 4 lati con ampio terreno circostante. La casa si sviluppa su tre livelli e si compone: al piano terra da ingresso su cucina abitabile con tinello, al primo piano da un disimpegno, una camera da letto, un ripostiglio e un bagno e al secondo piano ed ultimo da 2 camere da letto. A completare la proprietà, vi è un ampio box di 24 mq con wc interno, un posto auto nei pressi dell'ingresso e del terreno in parte adibito a cortile / giardino adiacente con barbecue per un totale di 530 mq e un orto di 340 mq a pochi passi. Il riscaldamento è alimentato da con camino a legna e vi è anche il gpl. DA VISITARE!!